หน้าแรก
สินค้าทั้งหมด
วิธีการสั่งซื้อสินค้า
แจ้งชำระเงิน
บทความ
เกี่ยวกับเรา
ติดต่อเรา
หน้าแรก
>
บทความ
>
แบบเรือ 3
แบบเรือ 3
7 ปีที่ผ่านมา
โดย
เจ้าของร้าน
สวัสดีครับ วันนี้ 8 ต.ค. 2561 มาต่อจากบทความตอนที่แล้วกันครับ
ต่อไปก็เป็นแบบ ในหมวด ค ข้อ ๑๓ ย่อย ๑o แบบผนังกันน้ำ ผนังกันน้ำมัน(Watertight And Oiltight) จะแสดงรายละเอียดของโครงสร้างผนังตามขวางตัวเรือ ว่ามีวัสดุอะไรบ้าง
ต่อไปก็เป็นแบบ ในหมวด ค ข้อ ๑๓ ย่อย ๑๑ ซูปเปอร์สตรัคเจอร์(Superstructure And BulkHead) แบบในกลุ่มนี้ก็จะมีปนๆกับ ข้อย่อย ๑o อยู่เหมือนกัน แต่ที่มีต่างออกมาก็คือจะแสดงโครงสร้างทั้งหมดของชั้นที่อยู่เหนือ Main Deck ทั้งหมดโดยละเอียด ดังรูปด้านล่าง
ข้ามมาที
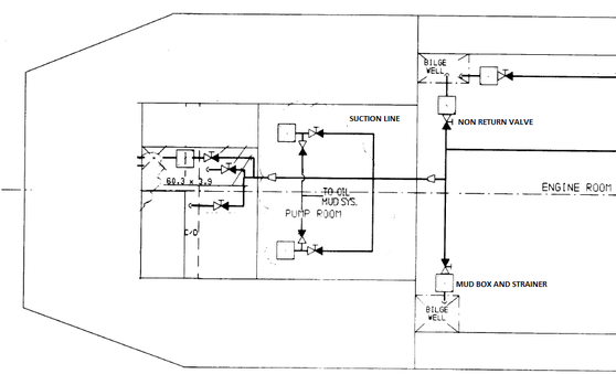
หมวด ค ข้อ ๑๓ ย่อย ๑๓ แบบการติดตั้งระบบสูบน้ำท้องเรือ(Bilge pumping arrangement ) แบบกลุ่มนี้จะแสดงรายละเอียดการจัดวาง ปั้มสูบน้ำท้องเรือ ทิศทางท่อสูบน้ำ ตลอดจนตำแหน่งหัวสูบน้ำ(Suction) ของแต่ละห้องหรือถังไม่ว่าจะใส่น้ำหรือไม่ใส่ก็ตามที่อยู่ติดกับท้องเรือ(Bottom) อาจจะรวมอยู่ในแบบแสดง ระบบ (System Diagram) ก็ได้ ในเรือเล็กๆ ก็มักนิยมใช้ปั้มน้ำอัตโนมัต ติดตั้งไว้ในห้องเครื่อง เรือหางยาว เรือแจว ก็ใช้สูบมือหรือกระป๋องคอยตักน้ำออกเอาเอง
ภาพจาก www.yachtsurvey.com
ภาพจาก www.mermaid-consultants.com
ตัดมาที่
หมวด ค ข้อ ๑๓ ย่อย ๑๘ แบบจัดการเพลิงไหม้(Fire control plan)
หมวด ค ข้อ ๑๓ ย่อย ๑๙ แบบจัดการอุปกรณ์ความปลอดภัยแห่งชีวิต(Life saving appliance plan)
หมวด ค ข้อ ๑๓ ย่อย ๒o แบบจัดการความปลอดภัย(Safety plan)
ทั้งสามข้อนี้ส่วนใหญ่จะรวมอยู่ในแบบ Safety plan เป็นแบบแสดงสัญลักษณ์ และตำแหน่งของอุปกรณ์ดับเพลิง อุปกรณ์ช่วยชีวิต เรือชูชีพ ฯ และช่องทางหนีภัยในชั้นต่างๆของเรือ เป็นแบบที่ต้องติดไว้ภายในเรือ ตามชั้นต่างๆ และที่มองเห็นได้ชัดเจน ดังนั้นเวลาไปเที่ยวออกเรือก็มองๆหาแล้วก็ศึกษาดูมั่งนะครับ มีประโยชน์มาก หน้าตาก็ประมาณรูปข้างล่างครับ
ภาพจาก dgmaritime.com
ภาพจาก www.shipdesign.de
ภาพจาก www.nas.com.mt
ภาพจาก www.flickr.com
เหลืออีกสามหัวข้อ ตามรายการตัวอย่าง ซึ่งก็เป็นแบบแสดงโครงสร้างซะสองคือแบบเสาค้ำ และแบบแสดงท้องเรือ ก็จะอยู่ในแบบโครงสร้าง(Constructio profile) และแบบซูปเปอร์สตรัคเจอร์(Superstrureuct) และแบบจัดการห้องเครื่องจักร ก็เอามาจาก แบบพื้นดาดฟ้าและ GA แล้วก็เพิ่ม ส่วนที่ขาดเข้าไปตามขนาดและตำแหน่งให้ครบ ก็เป็นอันจบแบบ.........ขี้เกียจนิดๆนะครับ คงไม่ว่ากัน และก็หวังว่าบทความเรื่อง แบบเรือ ทั้งหมดที่นำเสนอไปคงจะมีประโยชน์ต่อพวกเราเหล่านักเล่นเรือจำลอง และผู้ที่ผ่านเข้ามา ทั้งที่ตั้งใจและไม่ได้ตั้งใจบ้างไม่มากก็น้อย ครั้งต่อไปก็ว่าจะหาอะไรที่มันสนุกๆมานำเสนอ แต่ก็ไม่รู้ว่าคนอ่านจะสนุกด้วยหรือเปล่า อาจจะทำแบบเรือจาก Free software มาแบ่งๆกันดูก็ได้ ขอดูเวลาก่อนครับ ก็ขอให้ทุกท่านสนุกสนานกับการทำเรือจำลองนะครับ.....
Share
Share :
COPY
ARTICLE
เรือเล็ก 5 เมตร
7 เดือนที่ผ่านมา
17 มีนาคม 2568 1:52 น. สวัสดีครับทุกท่าน มีคลิปมาฝากครับ ราตรีสวัสดิครับทุกท่าน ขอให้สนุกในการต่อเรือและโมเดลกันมากๆครับ..................................................................................................... 26 มีนาคม 2568 4:23 น. สวัสด…
เรือ คายัค
7 เดือนที่ผ่านมา
15 มีนาคม 2568 0:23 น. สวัสดีครับทุกท่าน มีรูปมาอวดครับ หาเรื่องมาเล่าไม่ได้ก็ใช้รูปมาแก้ขัดไปก่อนละกันครับ ตัดแยกออกเป็นสี่ท่อนเพื่อสดวกในการขนย้ายครับ ลำนี้เป็นเรือ คายัค เอาหน้าตามาจาก Where House 3D ครับ หาใน google ได้ เขาให้มาเป็น 3D ในไฟล์ของ …
ทิ้งขยะลงแม่น้ำเจ้าพระยา
7 เดือนที่ผ่านมา
1 มีนาคม 2568 0:23 น. สวัสดีครับทุกท่าน ผ่านไปเจ็ดวันทุกอย่างยังคงเงียบอยู่เช่นเดิม แบบก็ยังอยู่ครบ ไม่มีใครติดต่อมารับไป ท่านใดมีประสงค์ก็ติดต่อมาได้ครับ สังคมของคนเล่นเรือในบ้านเรา เท่าที่ผมสังเกตุมาหลายปี ถ้าจะแบ่งประเภทของเรือจะมีหลากหลายมากจริงๆ…
วิธีแจกแบบเรือ ฟรี
7 เดือนที่ผ่านมา
20 กุมภาพันธ์ 2568 12:34 น. สวัสดีครับทุกท่าน หายไปสิบกว่าวัน เพราะมีงานด่วนงานเผาเข้ามา เสร็จแล้วก็ส่งไป ควันยังฟุ้งอยู่เลยครับ 555555555 ผมคิดออกละ ว่าจะแจกแบบยังไง คืองี้ ใครอยากได้ให้โทรเข้ามา หรือติดต่อ ไลน์มาก็ได้ แล้วนัดวันมารับไปเลยครับ สถานท…
หนึ่งในแบบเรือที่จะแจก
7 เดือนที่ผ่านมา
6 กุมภาพันธ์ 2568 3:11 น. สวัสดีครับทุกท่าน มาเร็วกว่าเมื่อวานหน่อยนึง วันนี้มีตัวอย่าฃแบบที่จะแจกมาลงให้ดูกันครับ เนื่องจากงปจำกัดทำได้แค่สองแผ่น เป็นการสแกนแบบ ขนาดกระดาษ a0 ได้มาสองแผ่นที่สำคัญครับ มาดูกัน แบบข้างบนนี้้เป็นแบบ GA ของเรือขนส่งพนักง…
อ่านทั้งหมด
>>
SEARCH
ค้นหา
ค้นหาโดยละเอียด
ดูทั้งหมด
CATEGORY
สินค้าทั้งหมด
[0]
สินค้ามาใหม่
[0]
สินค้าแนะนำ
[0]
หมวดหมู่ตัวอย่าง
[2]
NEW PRODUCTS
ดูสินค้ามาใหม่ทั้งหมด
MEMBER
คุณเป็นตัวแทนจำหน่าย
ระดับ{{userdata.dropship_level_name}}
ไปหน้าหลักตัวแทน
ระดับสมาชิกของคุณ ที่ร้านค้านี้
รายการสั่งซื้อของฉัน
ทั้งหมด {{(order_nums && order_nums.all)?'('+order_nums.all+')':''}}
รอการชำระเงิน {{(order_nums && order_nums.wait_payment)?'('+order_nums.wait_payment+')':''}}
รอตรวจสอบยอดเงิน {{(order_nums && order_nums.wait_payment_verify)?'('+order_nums.wait_payment_verify+')':''}}
รอจัดส่งสินค้า {{(order_nums && order_nums.wait_send)?'('+order_nums.wait_send+')':''}}
รอยืนยันได้รับสินค้า {{(order_nums && (order_nums.wait_receive || order_nums.wait_confirm))?'('+(order_nums.wait_receive+order_nums.wait_confirm)+')':''}}
รอตรวจสอบข้อร้องเรียน {{(order_nums && order_nums.dispute)?'('+order_nums.dispute+')':''}}
เรียบร้อยแล้ว {{(order_nums && order_nums.completed)?'('+order_nums.completed+')':''}}
ทั้งหมด {{(order_nums && order_nums.all)?'('+order_nums.all+')':''}}
รอการชำระเงิน {{(order_nums && order_nums.wait_payment)?'('+order_nums.wait_payment+')':''}}
รอตรวจสอบยอดเงิน{{(order_nums && order_nums.wait_payment_verify)?'('+order_nums.wait_payment_verify+')':''}}
รอจัดส่งสินค้า {{(order_nums && order_nums.wait_send)?'('+order_nums.wait_send+')':''}}
ส่งสินค้าเรียบร้อยแล้ว {{(order_nums && order_nums.sent)?'('+order_nums.sent+')':''}}
logout
เข้าสู่ระบบด้วย
เข้าสู่ระบบ
สมัครสมาชิก
ยังไม่มีบัญชีเทพ
สร้างบัญชีใหม่
ไม่มีค่าใช้จ่าย
สมัครสมาชิก (ฟรี)
STATISTICS
หน้าที่เข้าชม
94,976 ครั้ง
ผู้ชมทั้งหมด
77,797 ครั้ง
เปิดร้าน
24 พ.ค. 2561
ร้านค้าอัพเดท
25 ต.ค. 2568
CONTACT US
0879262908
r_pinsuwan@hotmail.com
f35efg
TRACK&TRACE
ตรวจสอบพัสดุ
LINK
กรมเจ้าท่า
NAVIS
หน้าแรก
|
วิธีการสั่งซื้อสินค้า
|
แจ้งชำระเงิน
|
บทความ
|
เกี่ยวกับเรา
|
ติดต่อเรา
|
ตะกร้าสินค้า
|
Site Map
Copyright © 2025
vinmodel.lnwshop.com
All rights reserved.
ตะกร้า
(
0
)
▲
▼
รายการสั่งซื้อของฉัน
เข้าสู่ระบบด้วย
เข้าสู่ระบบ
สมัครสมาชิก
ยังไม่มีบัญชีเทพ
สร้างบัญชีใหม่
ไม่มีค่าใช้จ่าย
สมัครสมาชิก (ฟรี)
รายการสั่งซื้อของฉัน
ข้อมูลร้านค้านี้
VIN MODEL
จำหน่าย เรือโมเดล,สอน ออกแบบ เขียนแบบเรือโมเดล กรุงเทพมหานคร โทรศัพท์ 0879262908
เบอร์โทร :
0879262908
อีเมล :
r_pinsuwan@hotmail.com
ส่งข้อความติดต่อร้าน
เกี่ยวกับร้านค้านี้
ค้นหาสินค้าในร้านนี้
ค้นหา
หรือค้นหาอย่างละเอียด
ค้นหาสินค้า
สินค้าที่ดูล่าสุด
{{pdata.name}}
ดูสินค้าทั้งหมดในร้าน
สินค้าที่ดูล่าสุด
บันทึกเป็นร้านโปรด
Join เป็นสมาชิกร้าน
แชร์หน้านี้
แชร์หน้านี้
↑
TOP
เลื่อนขึ้นบนสุด
คุณมีสินค้า
0
ชิ้นในตะกร้า
สั่งซื้อทันที
สินค้าในตะกร้า ({{total_num}} รายการ)
ขออภัย ขณะนี้ยังไม่มีสินค้าในตะกร้า
ราคาสินค้าทั้งหมด
฿ {{price_format(total_price)}}
- ฿ {{price_format(discount.price)}}
ราคาสินค้าทั้งหมด
{{total_quantity}} ชิ้น
฿ {{price_format(after_product_price)}}
ราคาไม่รวมค่าจัดส่ง
ดูสินค้าในตะกร้า
เริ่มการสั่งซื้อ
➜
เลือกซื้อสินค้าเพิ่ม
พูดคุย-สอบถาม
อีเมล r_pinsuwan@hotmail.com
โทร 0879262908
Add f35efg